
Designs
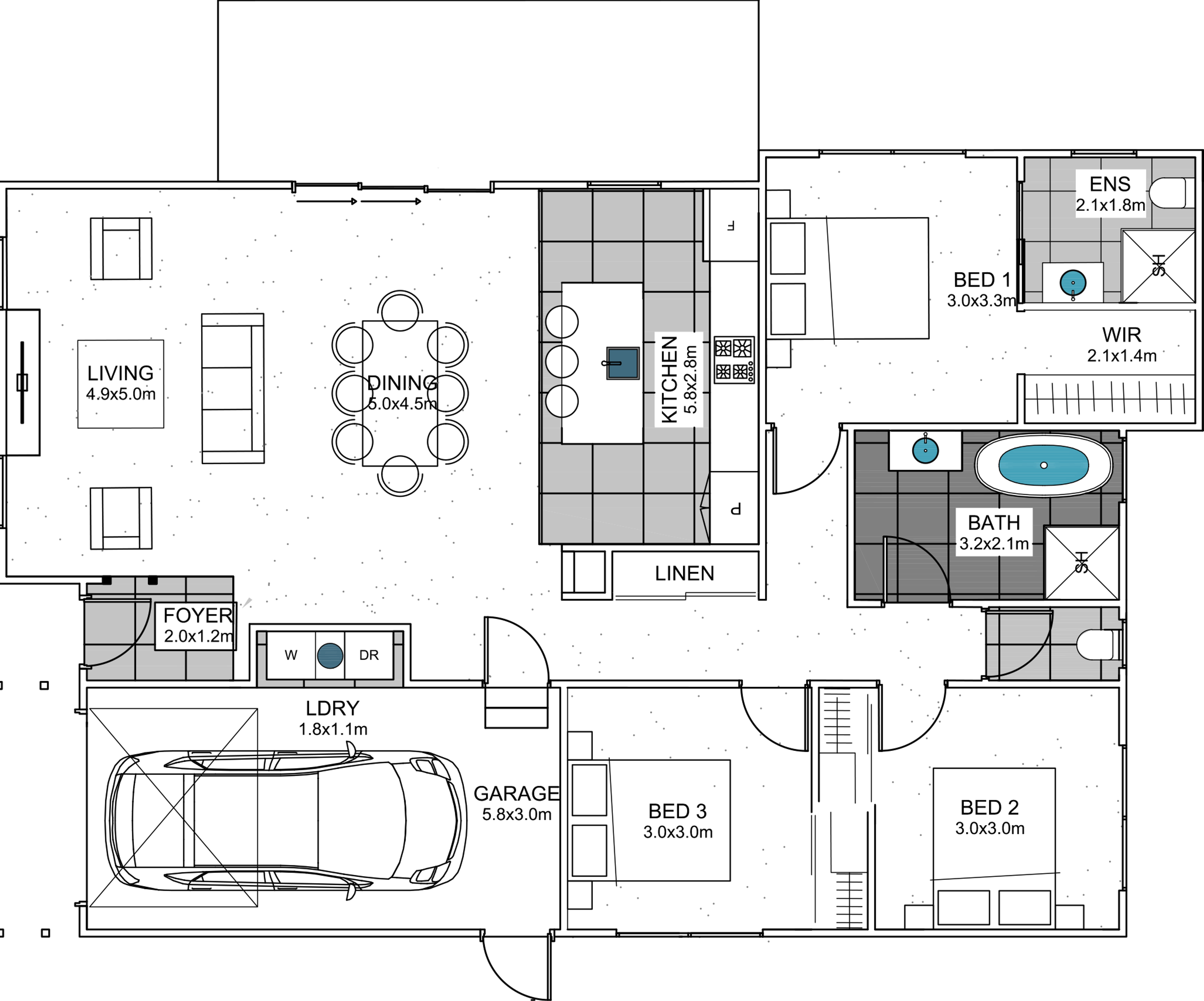
Kingston
3
2
1
130m2
Our Kingston design has a simple and appealing layout. It incorporates an open plan kitchen, dining, living area with good use of the space and usability. The bedrooms all have built in robes and the master bedroom has a walk-in robe and an ensuite. The dining room opens to an outdoor living area through big sliding doors.
This is an easy to enjoy layout that will suit any family.
